사용자 삽입 이미지

                        [사진]강원도 영월 샌드위치판넬 조립식주택 형강 골조공사


사용자 삽입 이미지
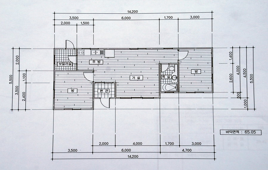
2007년 12월 10일 영월군 주천면 신일리  샌드위치판넬 조립식주택 신축 공사를 시작했다. 바닥면적이 65.05제곱미터로 평으로 환산하면 20평의 농가주택이다. 건축주의 고향에서 농사를 짓는 부모님의 과수원 밭가에 짓는 신일리 조립식주택은 노부부가 과수원을 가꾸며 생활하는데 적당한 곳에 위치해 있고 방2칸과 거실, 주방, 화장실, 보일러실이 있는 집으로 건축된다. 집은 클수록 좋은 집이 아니듯이  건축주가 일상생활에서 필요로 하는 공간을 나누고  난방의 효율성을 극대화 하면 좋은 집이라고 말 할 수 있을 것이다. 창문을 열면 건축주의 땀과 정성이 깃들어 자라고 있는 과수원이 한 눈에 바라보이는 양지바른 곳에 자리 잡은 신일리 농가주택이 튼튼하고 아담하게 건축되어 고향을 지키며 살아가는 우리시대의 농부들에 잠자리가 좀 더 편안해지면 타향에서 부보님을 생각하며 열심히 살아가는 자식들도 따뜻한 가슴으로 고향에 계신 부보님을 생각 할 수 있는 신일리 조립식 농가주택이니 그 어찌 예쁘고 좋은 집이라 아니 할 수 있겠는가?


사용자 삽입 이미지

                               [사진]신일리 조립식주택 신축부지 설계도

사용자 삽입 이미지

                                          [사진]신일리 조립식주택 평면도

사용자 삽입 이미지

                                       [사진]신일리 조립식주택 지붕 평면도

트랙백 주소 :: http://sebong.co.kr/trackback/798

댓글을 달아 주세요